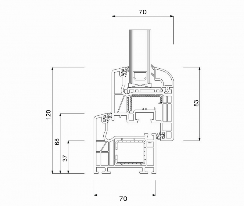
FENETRE CT 70 CLASSIC
- Le système de fenêtres en PVC CT 70 AS, à joint de frappe, est basé sur une technologie à 5 chambres
- La faible largeur de profilés permet un clair de vitrage maximal de la lumière naturelle et une isolation thermique d’excellente qualité.
- Les systèmes de fenêtres CT 70 AS conviennent pour de multiples possibilités d’application dans le domaine des nouvelles constructions comme dans celui de la rénovation.
- Une sécurité de système élevée est par ailleurs garantie par un ensemble complet d’accessoires.
- Les deux joints d’étanchéité périphériques offrent une protection optimale contre le vent, la pluie et le bruit.
- Les profilés blancs du système de fenêtre CT 70 sont toujours fournis avec des joints en coloration moderne gris argent et, les profilés plaxés avec des joints noirs.

